
山中湖にある別荘を、撮影用ハウススタジオとして開放しています。この「STUDIO MEDINA(スタジオ メディナ)」は、ホロスコープを意識した12段の螺旋階段やモロッコ風サロン、古代建造物に倣い春分の日に太陽が差し込む外壁のスリットなど、設計にも数々の遊び心を取り入れています。キッチンスタジオとして料理の撮影にも最適です。晴れた日には庭から富士山が一望できる「STUDIO MEDINA(スタジオ メディナ)」でクリエイティブなひとときをお過ごしください。
スタジオ メディナ代表 岡本翔子

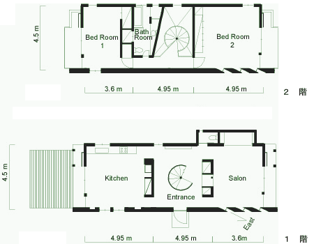
Salon

Kitchen

Entrance

Bath room

Bed room

Others
■ 設備
- 2階ROOM1をフィッティングルーム、BATHROOMをメイクルームとしてご使用いただけます。
- 家具(イギリスアンティック、ダイニングテーブル、キャビネット等)ご使用いただけます。
- 庭、テラス、デッキご使用いただけます。
- 電気容量:40A
*全身用姿見はございませんので、ご持参下さい。
■ スタジオ使用料金
- スチール撮影
1時間 20,000円 (消費税別途/4時間から) - ムービー・VTR撮影
1時間 30,000円 (消費税別途/4時間から)
*深夜、早朝(PM9:00~AM8:00)は、20%増。
*初回ご利用に関してはどなた様に限らず現金でのお取扱いにさせて頂きます。
*キャンセル料
当日・前日 100%
2日前 80%
3日前 60%
4日前 40%
5日前 20%

■ ご使用上の注意
- 当スペースは個人用別荘で、撮影専用スタジオではありません。撮影ご使用の場合は、 住宅での撮影として準備してください。
- お申し込みの使用目的と異なったご利用はお断り致します。
- 2階Bed room2、キッチン機材の使用の際は、ご相談下さい。
- ヌード及びセミヌード等特別な撮影はお断りいたします。また、撮影申込書を事前に提出していただきます。
- ペットの撮影は、事前にご相談下さい。
- 当スペースは、1階・喫煙可、2階・禁煙となっております。
- スタジオ助手はおりませんのでご了承下さい。
- 撮影機材は、常備しておりません。
- 壁、天井、床 及びスペース内でのガムテープ類、釘、ネジ類などの使用は禁止。
- 火気の使用はご相談ください。
- 撮影使用上でたゴミは、全てお持ち帰り下さい。
- 撮影使用上発生した火災、盗難の賠償及び建物の破損の修復は、使用者側の負担とさせていただきます。
- 不測の火災、盗難、機材の破損など、スペース内で発生した使用者側の損害に関しては、当スタジオは、一切の責任を負えません ので御了承下さい。
Access

◎中央自動車道河口湖ICから東富士五湖道路山中IC経由10分
◎東名高速御殿場ICからR138経由30分
◎東名高速御殿場ICからR138経由30分
ADDRESS
山梨県南都留郡山中湖
STUDIO MEDINA
ご予約、ご質問やお問い合せはお問い合わせフォームよりご連絡ください。
お問い合せはこちら